Are you looking to design your dream house but don’t know where to start? One great way to plan out your space is by using graph paper. By creating a house floor plan on graph paper, you can easily visualize the layout and dimensions of each room.
With the help of a house floor plan designer on graph paper, you can experiment with different room configurations, furniture placements, and overall flow of your home. This can be a fun and creative process that allows you to bring your vision to life.
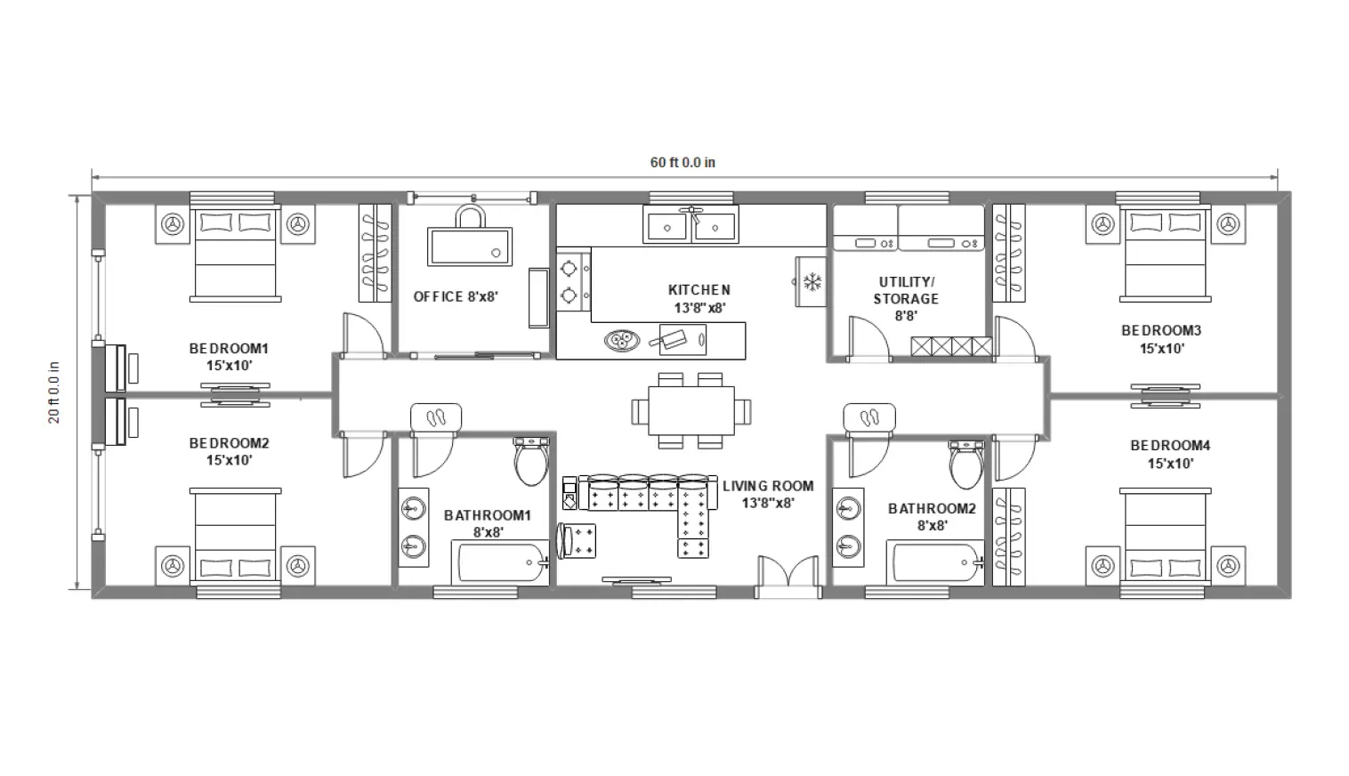
House Floor Plan Designer On Graph Paper
House Floor Plan Designer On Graph Paper
Start by sketching out the overall layout of your house on graph paper. Use different colors or patterns to represent walls, doors, windows, and furniture. This will give you a better sense of how each room will look and feel.
Don’t forget to consider factors like natural light, traffic flow, and functionality when designing your house floor plan. You want to create a space that is not only aesthetically pleasing but also practical and comfortable for everyday living.
Once you have a basic layout in place, you can start adding in more details like room dimensions, furniture sizes, and any other specific features you want to include. This will help you refine your design and make any necessary adjustments before finalizing your house floor plan.
By using a house floor plan designer on graph paper, you can take your home design project to the next level. Whether you’re building a new house or remodeling an existing one, having a visual representation of your space can make the process smoother and more enjoyable.
In conclusion, creating a house floor plan on graph paper is a great way to bring your ideas to life and plan out the home of your dreams. With the help of a house floor plan designer, you can easily experiment with different layouts and configurations until you find the perfect design for your space.
Free Four Bedroom House Plans
Architectural House Floor Plan On Graph Paper Grid Stock Illustration Illustration Of Sketch Architecture 371466621


